Description
New Build Villa Project in Pla Roig, Calpe
Exclusivity in One of Calpe’s Most Desirable Areas
This new build project is located in the quiet and consolidated residential area of Pla Roig, one of the most sought-after neighbourhoods in Calpe. Set on a flat plot of 742 m², the villa offers the perfect balance between privacy and proximity to amenities. Supermarkets, restaurants, the beach, and Calpe’s charming town centre are all within walking distance.
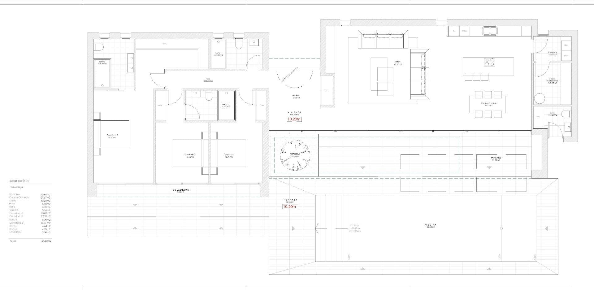
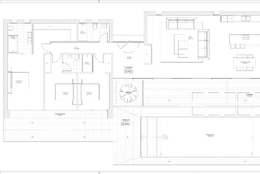
Single-Storey Contemporary Design
With a built area of 139.61 m², this one-level villa has been designed for comfortable and easy living. The layout features a spacious living-dining room with open-plan kitchen, three double bedrooms, and two bathrooms (one en-suite in the master bedroom). Large windows and direct access to the terrace create a bright and airy atmosphere throughout the house.
Outdoor Lifestyle
The project includes generous outdoor areas, ideal for enjoying the Mediterranean climate year-round: a covered porch of 32.37 m², an open terrace of 52.28 m², and a private swimming pool of 29.50 m². The villa will be surrounded by a low-maintenance garden and provides parking space within the plot.
An exclusive new build project that combines modern design, comfort, and an unbeatable location. The perfect opportunity to enjoy a turnkey villa in one of Calpe’s most desirable residential areas.
