Description
A new mediterranean villa under construction located just 500 meters from the sea, this property is close to restaurants, supermarkets and hotels and is south facing to offer lovely open views. Just 2 km from the town of Calpe, it is built on a quiet 800 square meter plot that is surrounded by trees on all sides, giving you the privacy and serenity of residential life. br>br>
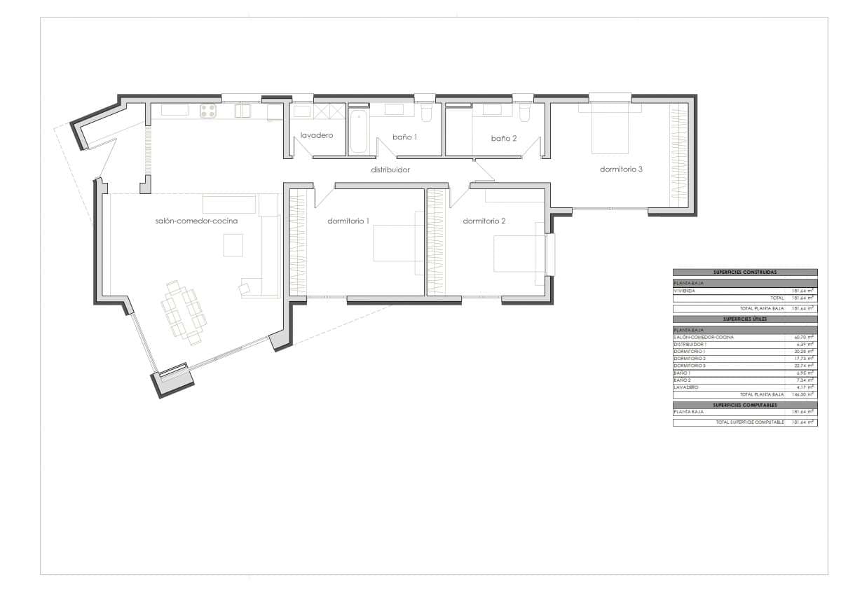
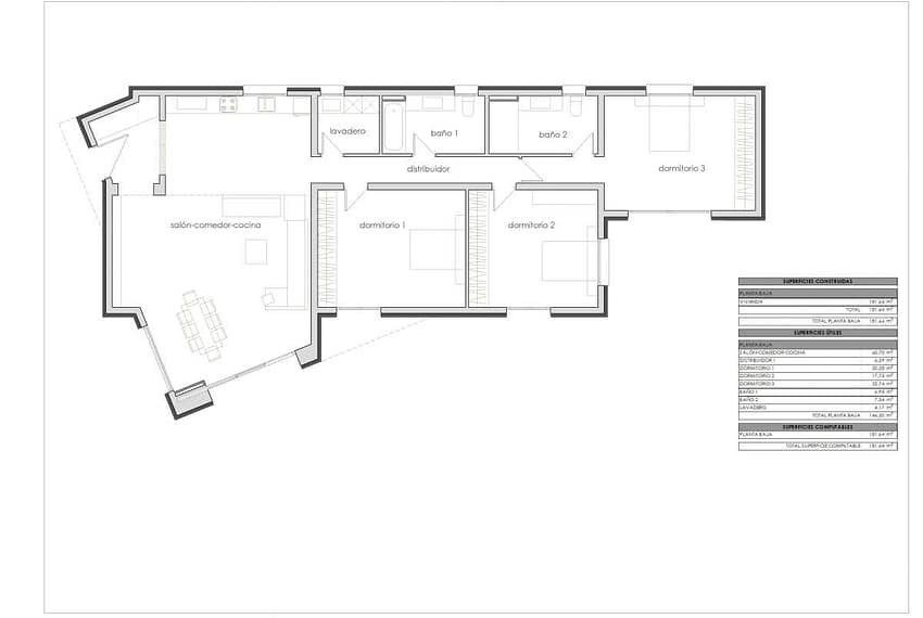
Built on one level, just like the pool, it has a constructed area of 156.84 m2 and extends to offer spacious rooms and amazing views through fully optimized glass doors and recessed-lit walls to compensate for natural light regardless. of the season of the year. White walls with subdued colored tiles allow furniture and décor to pop as intended.br>br>
A spacious living area is adjacent to an open concept eat-in kitchen that has been fully fitted with the latest appliances and suitable marble worktops. The living room opens onto a covered terrace, with an outdoor dining space, to enjoy nature and the pool.br>br>
It has three bedrooms and two bathrooms. Add a security door, double glazing, an alarm system, electric shutters in bedrooms, air conditioning, underfloor heating, private parking and a private garden, and you have a wonderful place to call home.br>br>
If you want to relax by the pool or enjoy dinner with the stars with your family, contact us for an on-site visit.
